
Wikala (caravanserai) of Qaytbay
Wikala al-Dashisha
The building is located to the right of the entrance of Bab al-Nasr, in the direction of Gamaliyya Street, Cairo, Egypt
Hegira 885 / AD 1480
Mamluk
Sultan al-Ashraf Abu al-Nasr Qaytbay (r. AH 872–901 / AD 1468–96).
The Wikala (or caravanserai) of Qaytbay is considered a model for other caravanserais in the Mamluk period, which included storage and commercial areas to sell merchandise, as well as providing accommodation for merchants and their clients.
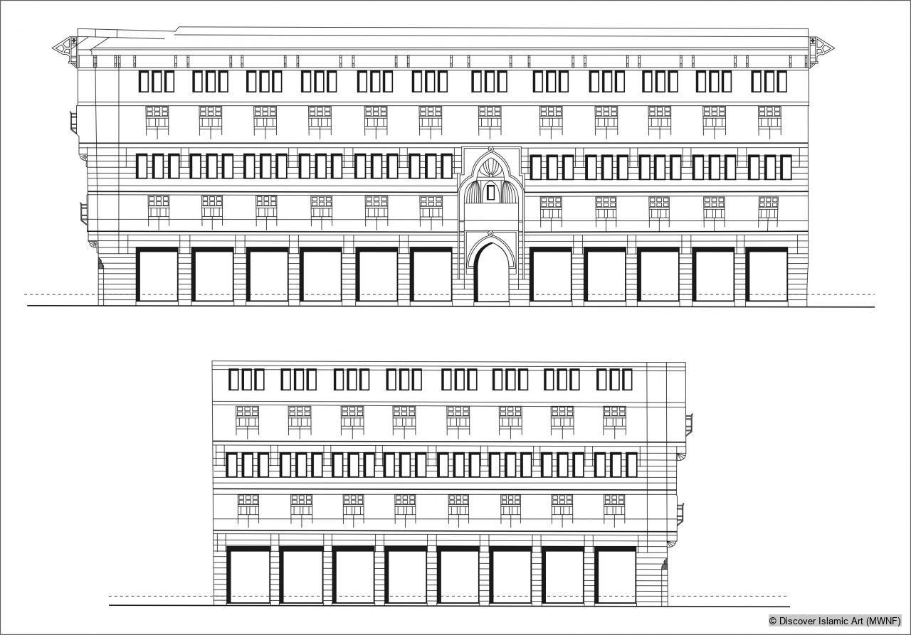
The façade of the building overlooks Bab al-Nasr Street, and is divided into three horizontal levels. The entrance occupies the centre of the façade. On each of the two sides of the portal are five shops, above each of which is a turned-wood window grille, known as mashrabiyya. On top of the masharabiyyas are a row of windows provided with networks of iron grills. The entrance consists of a recessed wall containing an opening for the door. It is crowned by a tri-lobed arch whose height extends to the level of the window-openings located on the sides of the entrance. The spandrel of the arch is decorated with carved, stone vegetal motifs. On the upper corners of the arch is a projecting stone ornament consisting of two rows of muqarnas. Above the entrance arch is a band of inscription, carved in Mamluk thuluth script stating the reason for building this edifice. In general, the entrance to the caravanserai resembles the entrance to the Madrasa of Qaytbay in the Mamluk Cemetery in Cairo.
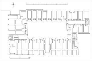
The floor-plan of the building is a rectangular courtyard that, on the ground floor, is surrounded by a group of storage areas. Above it are three stories, which include residential units for merchants.
This wikala has shops on either side of the entrance and storerooms and lodgings for merchants around the open internal courtyard. Its patron, Sultan Qaytbay, endowed it to provide crushed grain for the poor of Medina al-Munawara in Hijaz. This function is registered on an epigraphic band on the entrance.
Dating of the building is supported by historical documents which include the specific waqf dedicated to the building (No. 885, dated 894 / 1489). The waqf is in the name of Sultan Qaytbay and is kept in the archives of the Ministry of Awqaf in Cairo. The waqf document indicates that Sultan Qaytbay endowed the caravanserai for the purpose of earning revenue to buy dashisha (ground grain) to be distributed amongst the poor in Medina in the Hijaz, whose poverty he had witnessed when he led the Hajj (pilgrimage) in 884 / 1479.
Al-Pasha, H., Madkhal ila al-Athar al-Islamiya [Introduction to Islamic Art], Cairo, 1979.
Sameh, Kamal al-Din, Al-'imara al-Islamiya fi Masr [Islamic Architecture in Egypt], Cairo, 1991.
Tarek Torky "Wikala (caravanserai) of Qaytbay" in Discover Islamic Art, Museum With No Frontiers, 2026. 2026.
https://islamicart.museumwnf.org/database_item.php?id=monument;ISL;eg;Mon01;32;en
Prepared by: Tarek TorkyTarek Torky
Tarek Abdel Aziz Torky holds a BA in Islamic and Coptic Antiquities from Cairo University (1982). He is currently Head of the Statistics Department at the Information Centre of the Supreme Council of Antiquities and reporter of the committee set up to prepare for the celebrations of the centennial of the Museum of Islamic Art in Cairo. As Expo Curator for the Discover Islamic Art project in Egypt he prepared the database information for the Egyptian monuments included in the project and participated in formulating the dynastic and cross-dynastic exhibitions. He has participated in the first phase of the Islamic Art in the Mediterranean project as product manager and prepared the texts and photos for the catalogue Mamluk Art: the Splendour and Magic of the Sultans (MWNF, 2001). In 2002 he obtained a scholarship for Med. Master on new technologies for valorisation and management of Mediterranean Cultural Heritage in Ravello, Salerno.
Copyedited by: Majd Musa
Translation by: Amal Sachedina (from the Arabic).
Translation copyedited by: Mandi GomezMandi Gomez
Amanda Gomez is a freelance copy-editor and proofreader working in London. She studied Art History and Literature at Essex University (1986–89) and received her MA (Area Studies Africa: Art, Literature, African Thought) from SOAS in 1990. She worked as an editorial assistant for the independent publisher Bellew Publishing (1991–94) and studied at Bookhouse and the London College of Printing on day release. She was publications officer at the Museum of London until 2000 and then took a role at Art Books International, where she worked on projects for independent publishers and arts institutions that included MWNF’s English-language editions of the books series Islamic Art in the Mediterranean. She was part of the editorial team for further MWNF iterations: Discover Islamic Art in the Mediterranean Virtual Museum and the illustrated volume Discover Islamic Art in the Mediterranean.
True to its ethos of connecting people through the arts, MWNF has provided Amanda with valuable opportunities for discovery and learning, increased her editorial experience, and connected her with publishers and institutions all over the world. More recently, the projects she has worked on include MWNF’s Sharing History Virtual Museum and Exhibition series, Vitra Design Museum’s Victor Papanek and Objects of Desire, and Haus der Kulturen der Welt’s online publication 2 or 3 Tigers and its volume Race, Nation, Class.
MWNF Working Number: ET 32
RELATED CONTENT
Related monuments
Islamic Dynasties / Period
On display in
Exhibition(s)
Download
As PDF (including images) As Word (text only)